Big Springs, Agua Dulce Property Listing: MLS® #HD24139269

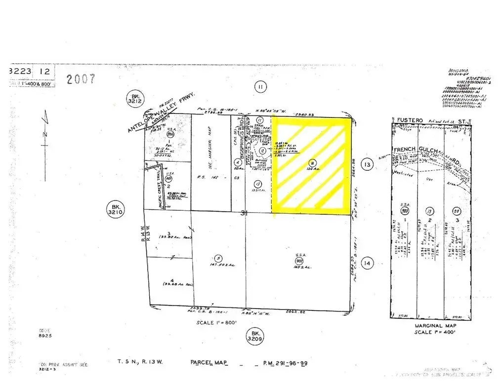
APN 3223-012-008 | This beautiful 135.22 acres of unspoiled landscape in Agua Dulce, California could be all yours for the modest price of $1.2M. A short distance away from Escondido Canyon Road and the 14 Freeway, Make this an ideal location allowing you to enjoy both a secluded rural get-away, and still have an easy commute into town. Build a neighborhood of small rural estates across the rolling topography or keep the whole property for yourself to enjoy horseback riding, off-road riding and other outdoor activities on your own family compound. Weve walked this expansive property ourselves before listing it for sale. The views are amazing, the grounds had a few trails carved through them, and the landscape was rich with vibrant colors both from the indigenous plant life as well as the soil, and minerals. Being there in person was an uplifting and energizing experience. From rural estate lots to recreational camping grounds your imagination is the only limit when it comes to enjoying this great investment. This parcel is zoned Heavy Agriculture allowing for a minimum lot size of 2.0 Acres each and allows for rural residential living with one dwelling unit per 10.00 Acres. There is a Tentative Tract Map in place allowing for a potential subdivision into six (6), twenty (20) acre lots. We have a motivated Seller that is open to negotiating a great deal. **Please note, although we believe that we have sourced accurate data regarding this property. All prospective Buyers are advised to satisfy themselves with all aspects of the subject property prior to completing a purchase.

Big Springs, Agua Dulce Property Listing: MLS® #HD24139269 Close
Page Summary
  • MLS® #: HD24139269
  • Big Springs
  • Agua Dulce, CA 91350
  • $1,200,000
  • 135.26 Acres
  • Office: Lee & Associates

APN 3223-012-008 | This beautiful 135.22 acres of unspoiled landscape in Agua Dulce, California could be all yours for the modest price of $1.2M. A short distance away from Escondido Canyon Road and the 14 Freeway, Make this an ideal location allowing you to enjoy both a secluded rural get-away, and still have an easy commute into town. Build a neighborhood of small rural estates across the rolling topography or keep the whole property for yourself to enjoy horseback riding, off-road riding and other outdoor activities on your own family compound. Weve walked this expansive property ourselves before listing it for sale. The views are amazing, the grounds had a few trails carved through them, and the landscape was rich with vibrant colors both from the indigenous plant life as well as the soil, and minerals. Being there in person was an uplifting and energizing experience. From rural estate lots to recreational camping grounds your imagination is the only limit when it comes to enjoying this great investment. This parcel is zoned Heavy Agriculture allowing for a minimum lot size of 2.0 Acres each and allows for rural residential living with one dwelling unit per 10.00 Acres. There is a Tentative Tract Map in place allowing for a potential subdivision into six (6), twenty (20) acre lots. We have a motivated Seller that is open to negotiating a great deal. **Please note, although we believe that we have sourced accurate data regarding this property. All prospective Buyers are advised to satisfy themselves with all aspects of the subject property prior to completing a purchase.

Supplemental Remarks

Essential Information

  • MLS® #HD24139269
  • Listing Price$1,200,000
  • Date ListedJuly 8th, 2024
  • Days on Market362
  • Acres135.26
  • Lot Sq.Ft.5,891,969
  • TypeLand
  • Sub-TypeLots/Land
  • StatusActive

Dues

  • Mello Roos Dues$109
  • Total Monthly Dues$9

Community Information

  • AddressBig Springs
  • AreaSANTA CLARITA (91350)
  • CityAgua Dulce
  • CountyLos Angeles
  • StateCA
  • Zip Code91350

Amenities

  • Has PoolYes

Interior

  • FireplaceYes
Print this Page

Property Location

Get directions to this property:
Please provide a valid email address.

Nearby Schools in Agua Dulce

This information is deemed reliable but not guaranteed. You should rely on this information only to decide whether or not to further investigate a particular property. BEFORE MAKING ANY OTHER DECISION, YOU SHOULD PERSONALLY INVESTIGATE THE FACTS (e.g. square footage and lot size) with the assistance of an appropriate professional. You may use this information only to identify properties you may be interested in investigating further. All uses except for personal, non-commercial use in accordance with the foregoing purpose are prohibited. Redistribution or copying of this information, any photographs or video tours is strictly prohibited. This information is derived from the Internet Data Exchange (IDX) service provided by San Diego MLS®. Displayed property listings may be held by a brokerage firm other than the broker and/or agent responsible for this display. The information and any photographs and video tours and the compilation from which they are derived is protected by copyright. Compilation © 2025 San Diego MLS®, Inc.

Listing information last updated on December 1st, 2025 at 1:26am PST.