877 Island Avenue 701, Property Listing: MLS® #NDP2510468

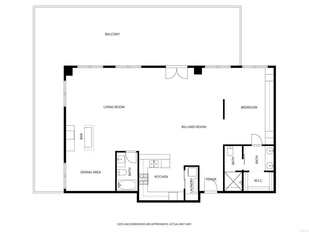
Premier Parkloft residence with an expansive wrap-around 900 sq. ft. balcony a true extension of your living space. This rarely available Northwest corner unit offers nearly 2,500 sq. ft. of combined indoor and outdoor living, perfect for entertaining before an event at Petco Park or hosting under the striking city lights. Step inside to an open loft-style layout featuring 106 ceilings, solid oak flooring, and luxurious custom upgrades throughout. The Studio Becker kitchen showcases a gas stove, new custom cabinetry providing a massive amount of storage, and premium finishes throughout. The home also includes a washer and dryer, two top-of-the-line 55 Sony OLED TVs, and a built-in sound system for an immersive audio experience. Custom lighting sets the perfect ambiance across the space. The space is thoughtfully designed, featuring exposed brick walls that add warmth and character and windows that bring the outside in. From the wrap around balcony enjoy listening to live music from nearby concerts or watch the planes fly in from the east. Double-pane windows ensure a peaceful retreat while indoors, away from the hustle and bustle. Enjoy Parklofts first-class amenities including TWO parking spaces, a 24/7 lobby attendant, fitness center, and beautifully landscaped courtyard with BBQs all in the heart of East Village, just steps from Petco Park this is the heartbeat of San Diego.

877 Island Avenue 701, Property Listing: MLS® #NDP2510468 Close
Page Summary
NEW
  • MLS® #: NDP2510468
  • 877 Island Avenue 701
  • , CA 92101
  • $1,295,000
  • 1 Bed, 2 Bath, 1538 SqFt
  • Office: Compass

Premier Parkloft residence with an expansive wrap-around 900 sq. ft. balcony a true extension of your living space. This rarely available Northwest corner unit offers nearly 2,500 sq. ft. of combined indoor and outdoor living, perfect for entertaining before an event at Petco Park or hosting under the striking city lights. Step inside to an open loft-style layout featuring 106 ceilings, solid oak flooring, and luxurious custom upgrades throughout. The Studio Becker kitchen showcases a gas stove, new custom cabinetry providing a massive amount of storage, and premium finishes throughout. The home also includes a washer and dryer, two top-of-the-line 55 Sony OLED TVs, and a built-in sound system for an immersive audio experience. Custom lighting sets the perfect ambiance across the space. The space is thoughtfully designed, featuring exposed brick walls that add warmth and character and windows that bring the outside in. From the wrap around balcony enjoy listening to live music from nearby concerts or watch the planes fly in from the east. Double-pane windows ensure a peaceful retreat while indoors, away from the hustle and bustle. Enjoy Parklofts first-class amenities including TWO parking spaces, a 24/7 lobby attendant, fitness center, and beautifully landscaped courtyard with BBQs all in the heart of East Village, just steps from Petco Park this is the heartbeat of San Diego.

Supplemental Remarks

Essential Information

  • MLS® #NDP2510468
  • Listing Price$1,295,000
  • List Price per Square Foot$842.00
  • Date ListedOctober 31st, 2025
  • Days on Market1
  • Bedrooms1
  • Bathrooms2.00
  • Full Baths2
  • Square Footage1,538
  • Garage Parking2
  • Year Built2003
  • TypeResidential
  • Sub-TypeAll Other Attached
  • StatusActive

Dues

  • HOA Dues$921
  • Mello Roos Dues$296
  • Total Monthly Dues$945

Community Information

  • Address877 Island Avenue 701
  • AreaSAN DIEGO DOWNTOWN (92101)
  • ComplexParkloft
  • CountySan Diego
  • StateCA
  • Zip Code92101

Amenities

  • Parking Spaces4
  • PoolN/K

View

Panoramic,Landmark,Neighborhood,Peek-A-Boo,City Lights

Interior

  • CoolingHigh Efficiency
  • FireplacesN/K
  • # of Stories11
  • Stories1 Story

Exterior

  • Lot DescriptionCurbs,Sidewalks
Print this Page

Property Location

Get directions to this property:
Please provide a valid email address.

Nearby Schools in

This information is deemed reliable but not guaranteed. You should rely on this information only to decide whether or not to further investigate a particular property. BEFORE MAKING ANY OTHER DECISION, YOU SHOULD PERSONALLY INVESTIGATE THE FACTS (e.g. square footage and lot size) with the assistance of an appropriate professional. You may use this information only to identify properties you may be interested in investigating further. All uses except for personal, non-commercial use in accordance with the foregoing purpose are prohibited. Redistribution or copying of this information, any photographs or video tours is strictly prohibited. This information is derived from the Internet Data Exchange (IDX) service provided by San Diego MLS®. Displayed property listings may be held by a brokerage firm other than the broker and/or agent responsible for this display. The information and any photographs and video tours and the compilation from which they are derived is protected by copyright. Compilation © 2025 San Diego MLS®, Inc.

Listing information last updated on November 2nd, 2025 at 7:57pm PST.