4768 Coronado Ave Avenue, Property Listing: MLS® #PTP2503660

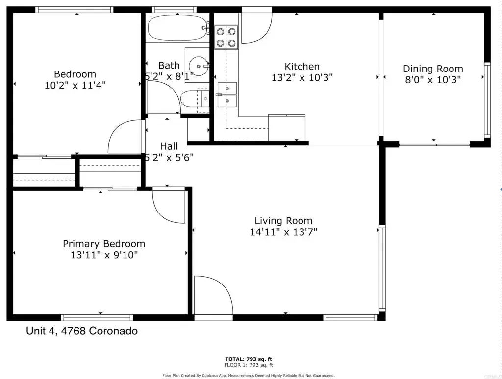
The Property is located in a supurb ocean view location that is highly desireable for income properties. The property is being sold As-Is. The owner had a true interest and dedication to using Solar power. Over time he had installed a 5 panel Solar System with battery backup stored in the garage of Unit 1. The configuration of the project is two levels with direct access at the front of each unit. Three of the units had some remodeling over time The most southern first level unit (4) had a bedroom added in 1984 that is now a large Dining Room. The adjoining unit (3) had a bathroom added and direct access to the garage. The second level Southern unit (2) had a 8x10 deck added with great coastal views. Attached in Listing information are footprints for each unit as well as illustration of how the units connect. Available. if requested for review at the site, are building plans for the original 3 units dated 1960. It is likely that this property will be able to add an unknown number of ADUs, The lot is flat until the end of the fenced yard for the most Southern ground level unit 4. From that point the property takes a very steep drop to Coronado Ave and there is natural spring. Prior to listing we have undertaken a full Property Inspection, a camera visual inspection of the sewer line and a termite inspection. The video of the camera inspection is too large to include. Please ask to have copy of video.All of these reports are available. We do this to provide potential buyers with important information and speed up due diligence. However, potential purchasers are encouraged to

4768 Coronado Ave Avenue, Property Listing: MLS® #PTP2503660 Close
Page Summary
REDUCED
  • MLS® #: PTP2503660
  • 4768 Coronado Ave Avenue
  • , CA 92107
  • $2,450,000
  • 7 Beds, 5 Bath, 2775 SqFt, 0.15 Acres
  • Office: Txr Homes

The Property is located in a supurb ocean view location that is highly desireable for income properties. The property is being sold As-Is. The owner had a true interest and dedication to using Solar power. Over time he had installed a 5 panel Solar System with battery backup stored in the garage of Unit 1. The configuration of the project is two levels with direct access at the front of each unit. Three of the units had some remodeling over time The most southern first level unit (4) had a bedroom added in 1984 that is now a large Dining Room. The adjoining unit (3) had a bathroom added and direct access to the garage. The second level Southern unit (2) had a 8x10 deck added with great coastal views. Attached in Listing information are footprints for each unit as well as illustration of how the units connect. Available. if requested for review at the site, are building plans for the original 3 units dated 1960. It is likely that this property will be able to add an unknown number of ADUs, The lot is flat until the end of the fenced yard for the most Southern ground level unit 4. From that point the property takes a very steep drop to Coronado Ave and there is natural spring. Prior to listing we have undertaken a full Property Inspection, a camera visual inspection of the sewer line and a termite inspection. The video of the camera inspection is too large to include. Please ask to have copy of video.All of these reports are available. We do this to provide potential buyers with important information and speed up due diligence. However, potential purchasers are encouraged to

Supplemental Remarks

Essential Information

  • MLS® #PTP2503660
  • Listing Price$2,450,000
  • List Price per Square Foot$882.88
  • Date ListedApril 13th, 2025
  • Days on Market200
  • Bedrooms7
  • Bathrooms5.00
  • Full Baths5
  • Square Footage2,775
  • Acres0.15
  • Lot Sq.Ft.6,416
  • Garage Parking3
  • Year Built1960
  • TypeResidential
  • Sub-TypeAll Other Attached
  • StatusActive Under Contract

Community Information

  • Address4768 Coronado Ave Avenue
  • AreaOCEAN BEACH (92107)
  • SubdivisionOcean Beach
  • CountySan Diego
  • StateCA
  • Zip Code92107

Amenities

  • Parking Spaces5
  • ViewOcean,Coastline
  • PoolN/K

Interior

  • CoolingN/K
  • FireplaceYes
  • FireplacesFP in Family Room
  • # of Stories2
  • Stories2 Story

Appliances

Disposal,Dryer,Microwave,Refrigerator,Washer,Electric Oven,Electric Range

Exterior

  • Lot DescriptionSidewalks
Print this Page

Property Location

Get directions to this property:
Please provide a valid email address.

Nearby Schools in

This information is deemed reliable but not guaranteed. You should rely on this information only to decide whether or not to further investigate a particular property. BEFORE MAKING ANY OTHER DECISION, YOU SHOULD PERSONALLY INVESTIGATE THE FACTS (e.g. square footage and lot size) with the assistance of an appropriate professional. You may use this information only to identify properties you may be interested in investigating further. All uses except for personal, non-commercial use in accordance with the foregoing purpose are prohibited. Redistribution or copying of this information, any photographs or video tours is strictly prohibited. This information is derived from the Internet Data Exchange (IDX) service provided by San Diego MLS®. Displayed property listings may be held by a brokerage firm other than the broker and/or agent responsible for this display. The information and any photographs and video tours and the compilation from which they are derived is protected by copyright. Compilation © 2025 San Diego MLS®, Inc.

Listing information last updated on November 1st, 2025 at 12:41pm PDT.