Yucca & Stevens, Adelanto Property Listing: MLS® #TR21220509

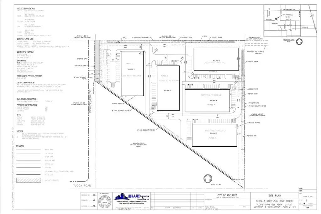
Major Price Adjustment. Property now sold as Raw Land - seller will NOT complete the Conditional Use Permit or Entitlements. Prime DEVELOPMENT Project. Located just east of the 420 Warehouses on Yucca. Only 840 feet away from pavement AND utilities on Yucca Rd. See PROPOSED Site Plan attached that provides for FIVE (5) Warehouses - build all and operate yourself, or rent out, or build in phases. Great Value for the size and location - UNDER $20,000 / acre for INDUSTRIAL land located NEAR pavement AND utilities. NOW, priced to for quick escrow! Zoning MI allows Heavy Manufacturing, Industrial and Cannabis. Check with City for other possible uses.

Yucca & Stevens, Adelanto Property Listing: MLS® #TR21220509 Close
Page Summary
REDUCED
  • MLS® #: TR21220509
  • Yucca & Stevens
  • Adelanto, CA 92301
  • $120,000
  • 6.44 Acres
  • Office: Homesmart, Evergreen Realty

Major Price Adjustment. Property now sold as Raw Land - seller will NOT complete the Conditional Use Permit or Entitlements. Prime DEVELOPMENT Project. Located just east of the 420 Warehouses on Yucca. Only 840 feet away from pavement AND utilities on Yucca Rd. See PROPOSED Site Plan attached that provides for FIVE (5) Warehouses - build all and operate yourself, or rent out, or build in phases. Great Value for the size and location - UNDER $20,000 / acre for INDUSTRIAL land located NEAR pavement AND utilities. NOW, priced to for quick escrow! Zoning MI allows Heavy Manufacturing, Industrial and Cannabis. Check with City for other possible uses.

Supplemental Remarks

Essential Information

  • MLS® #TR21220509
  • Listing Price$120,000
  • Date ListedOctober 4th, 2021
  • Days on Market1410
  • Acres6.44
  • Lot Sq.Ft.280,526
  • TypeLand
  • Sub-TypeLots/Land
  • StatusActive

Dues

  • Mello Roos Dues$667
  • Total Monthly Dues$55

Community Information

  • AddressYucca & Stevens
  • AreaADELANTO (92301)
  • CityAdelanto
  • CountySan Bernardino
  • StateCA
  • Zip Code92301

Amenities

  • UtilitiesOther/Remarks
  • Has PoolYes

Interior

  • FireplaceYes
Print this Page

Property Location

Get directions to this property:
Please provide a valid email address.

Nearby Schools in Adelanto

This information is deemed reliable but not guaranteed. You should rely on this information only to decide whether or not to further investigate a particular property. BEFORE MAKING ANY OTHER DECISION, YOU SHOULD PERSONALLY INVESTIGATE THE FACTS (e.g. square footage and lot size) with the assistance of an appropriate professional. You may use this information only to identify properties you may be interested in investigating further. All uses except for personal, non-commercial use in accordance with the foregoing purpose are prohibited. Redistribution or copying of this information, any photographs or video tours is strictly prohibited. This information is derived from the Internet Data Exchange (IDX) service provided by San Diego MLS®. Displayed property listings may be held by a brokerage firm other than the broker and/or agent responsible for this display. The information and any photographs and video tours and the compilation from which they are derived is protected by copyright. Compilation © 2025 San Diego MLS®, Inc.

Listing information last updated on October 31st, 2025 at 6:15pm PDT.